今日分享的是防爆电热管的组成结构及其原理,下面就让小助手为您分享今日的新闻热点——防爆电加热器。
有人咨询小助手问:防爆加热管的组成结构及其原理是什么?那么今天给大家介绍一下防爆加热管,首先介绍一下防爆加热管的产品简介。

一、防爆电热管工作原理
防爆电加热管是一种消耗电能转换为热能,热量传递管体并通过棒体足够的外表面积传递给介质加热升温。防爆电加热管是由防爆加热管与防爆接线盒配合而成。
2. 防爆电热管结构
电热管是根据GB3836.1-2000 爆炸性环境用防爆电器设备的要求设计和制造, 符合ExdeⅡBT3~ T4级防爆要求。用户必须按要求设计、安装和使用,电热管应与控制柜配套使用,以完备相应的液位配套保护。电热管有DB型(直式)和DBRL型(直角软管式)两种,见图一和图二。

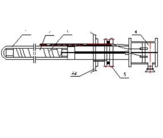
①管壳②芯管③ 加热电缆 ④接线盒⑤安装短
①加热电缆②壳体③芯管④接线盒
图二10~300KW卧式电加热器外形尺寸(见表一) 图二DBRL(直角软管)电热管结构示意图
图二10~300KW卧式电加热器外形尺寸(见表一) DBRL型电加热管是专门为小型油罐可以在不清洗内部、不在罐壁上重新开孔的条件下能够直接从罐人孔内插入安装而设计的,亦可用于不便在罐侧面开口需在上部安装的储罐(如埋地罐)。其加热部分在下部水平段,垂直部分为引出线段,高度视具体要求确定,接线盒在罐人孔外部连接。
今日的分享到这里就结束了,万森欢迎您的来电咨询!